JR京浜東北・根岸線「関内」駅 徒歩5分
横浜市営地下鉄ブルーライン「関内」駅 徒歩6分
JR京浜東北・根岸線「桜木町」駅 徒歩6分
☆関内店舗付住宅☆価格7,680万円☆担当/営業部
地図
詳細説明
- 詳細説明
●所在地/ 神奈川県横浜市中区吉田町
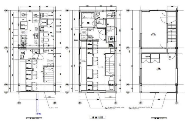
●土地面積/40.60㎡(約12.28坪)
●建物面積/96.60㎡
●土地権利/所有権
●構 造/鉄骨造
●築年月/昭和52年9月築
●現 況/賃貸中
●引 渡/相談
価格
価格7,680万円
交通
■「関内」駅歩5分、「桜木町」駅歩6分の立地
■前面道路は幅員16mのメイン通り
■周辺には飲食店や買物施設充実



お問い合わせ


